Pihamökki Kimmo, 70 mm
Hintaan sisältyvät myös liimapuusta valmistetut ovet ja ikkunat eristyslasilla, ruostumattomasta teräksestä valmistettu kynnys, kyllästetyt perustuspalkit, kiinnitystarvikkeet ja asennusohje.
Pihatuurin piharakennustehtaalla valmistettavat 70 mm:n pihavajat, hirsitalot, vajat, paviljongit, saunat, kesämökit, grillikodat ja puiset autotallit toimitetaan täydellisinä ovineen, ikkunoineen, lattioineen, kiinnitystarvikkeineen ja asennusohjeineen, joten piharakennuksen rakentaminen on helppoa ja aikaa säästävää.
Seinäpaksuudeltaan tuotepiirustuksen mukaisesti 70 mm Pihatuuri-pihamökkipaketti sisältää:
- Puumateriaalina on käytetty 100 % pohjoismaista laatukuusta
- Erikoisliimapuusta valmistetut (8–12 %) ovet ja ikkunat.
- Avattavat lasi-ikkunat, sisältää helat
- Ristikolliset lasi-ikkunalliset ovet, sisältää helat
- Katto on valmistettu 18 mm paksusta ponttilaudasta
- 28 mm paksu lautalattia
- Ruostumattomat teräskynnykset
- Kierretangot
- Kyllästetyt perustuspuut
- Kiinnitystyökalut (naulat ja ruuvit)
- Asennusohjeet
Hinnat ovat voimassa Pihatuurin tehtaan varastossa ja sisältävät arvonlisäveron.
Hinnat eivät sisällä kuljetusta.
Seinät
Seinän ulkomitat
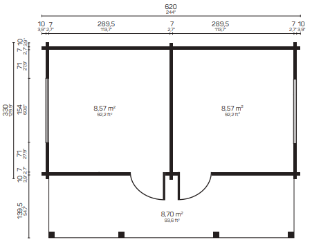
600×310 cm
Seinälevyn pituus
620×330 cm
Seinälevyn paksuus
70 mm
Sivuseinän korkeus
235/292 cm
Katto
Katon harjan korkeus
302 cm
Katon pinta-ala
36,21 m2
Katon kallistuskulma
11
Kattolauta
18 mm
Katoksen siirtyminen
30/30 cm
Lattia
Lattian pinta-ala
18,65 m2
Muu
Lasi-ikkunapaketti
2 x 990×1530 mm
Liimapuiset lasi-ikkunalliset ovet
2 x 840×1955 mm
