Gartenhaus Gotland A 70 mm
Shipping:
Enthalten sind eine Doppeltür und Fenster aus Brettschichtholz mit verglaster Einheit, eine Edelstahlschwelle, imprägnierte Fundamentbalken, Befestigungselemente und eine Montageanleitung.
Die im Werk für Garten- und Holzhäuser von Tene hergestellten 70 mm starken Gartenhäuser, Blockhäuser, Unterstände, Pavillons, Saunen, Gartenlauben, Grillhäuser und Holzgaragen werden komplett mit Türen, Fenstern, Boden, Befestigungselementen und Montageanleitung geliefert, was den Aufbau des Gartenhauses einfach und zeitsparend macht.
Das Set der Gartenhäuser mit einer Wandstärke von 70 mm von TENE umfasst gemäß Produktzeichnung folgende Artikel:
100 % Fichtenholz nordischer Qualität
Türen und Fenster aus extratrockenem (8–12 %) Brettschichtholz
Dreh-Kipp-Fenster deutscher Bauart mit verglaster Einheit
Doppeltür deutscher Bauart mit verglaster Einheit, inkl. Beschläge
Decke aus 18 mm starken Profilbrettern
Edelstahlschwelle
Gewindestangen
im Autoklaven imprägnierte Fundamentbalken
Befestigungselemente (Nägel und Schrauben)
Montageanleitung
Seinad
Seina välismõõdud
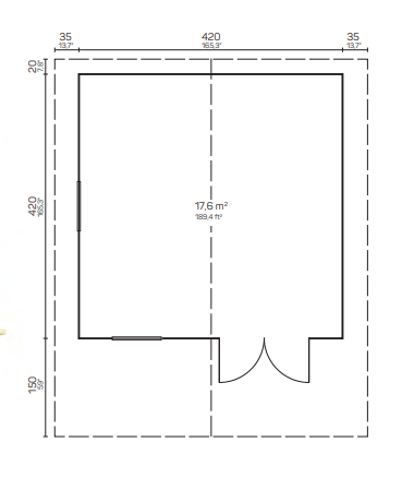
420 x 420 cm
Seinalaua pikkus
440 x 440 cm
Seinalaua paksus
70 mm
Küljeseina kõrgus
217 cm
Katus
Katuseharja kõrgus
279 cm
Katuse pindala
30,5 ㎥
Katuse kaldenurk
17°
Katuselaud
18 mm
Varikatuse üleminek
150 cm
Põrand
Põranda pindala
17,6 ㎡
Põrandalaud
- , 18 mm, 28 mm
Muu
Aken klaaspaketiga
2 x 765 x 990 mm ISO
Liimpuidust uks klaaspaketiga
1425 x 1955 mm ISO
Maja maht
ca. 41,7 ㎥
Immutatud vundamendiprussid
60 x 70 mm
Paki info
Toote paki mõõtmed
590 x 120 x 94 cm
Toote paki kaal
ca. 2100 kg
